Aktuelle Angebote
VERMIETET:
Erstbezug, Haus mieten in Nievenheim:
Erstbezug, Haus mieten in Nievenheim:
Das neue, umfangreich ausgestattete Einfamilienhaus mit Solarthermie freut sich bereits auf den Erstbezug. Die großen Giebelfenster lassen viel Tageslicht herein. Lichtdurchflutete Räume sorgen für eine angenehme Wohlfühlatmosphäre.
Das Einfamilienhaus befindet sich noch im Bau. Es ist bezugsfertig.
Steckbrief:
Steckbrief:
Einfamilienhaus mit Solarthermie in Dormagen Nievenheim
Erstbezugsfertig: 20xx
Außenanlagen werden im Laufe des Jahres 20xx fertiggestellt.
Wohnfläche: m²
Grundstück: m²
Stellplatz: 1
Garage: 1
Stellplatz: 1
Garage: 1
Aufteilung: 5 Zimmer, Küche, Diele, Bad, Gäste-WC, Garten
kontaktformular
Lage:
Das neue, für den Erstbezug fertiggestellte Einfamilienhaus liegt in Nievenheim, dem beliebten Dormagener Stadtteil.
Das Neubaugebiet bietet beste Anbindung an Düsseldorf, Neuss und Köln. Die S-Bahn ist fußläufig erreichbar. Alternativ bieten Autobahn, Bundes- und Landstraßen komfortablen Anschluss an Düsseldorf, Köln, Neuss und Mönchengladbach. Im Ort befinden sich zahlreiche Einkaufsmöglichkeiten für den täglichen Bedarf.
Das Wohngebiet wird durch einen Grünstreifen, der zum Spazieren einlädt, aufgewertet.
Weitere Erholungsmöglichkeiten findet man an dem in der Nähe gelegenen Rhein (5Km) und in lokalen Naherholungsgebieten (Knechtsteden, Tannenbusch).
Familien erfreuen sich über zahlreiche Kitas, Grund- und weiterführende Schulen. Innerhalb des Wohngebietes wird ein neuer Kinderspielplatz errichtet.
Grundrisse
Erdgeschoss:
Erdgeschoss:
Über den Vorgarten erhalten Sie Zugang zum Haupteingang. Die Diele führt vom Eingangsbereich zum großzügig gestalteten Wohnzimmer. Die moderne, offene Gestaltung, mit integrierter Küche bietet viele Möglichkeiten. Von Wohn- und auch vom Essbereich blicken Sie in den Garten. Unter der Treppe befindet sich ein Abstellraum. Über die Terrassentüre gelangen Sie in den sonnigen Garten.
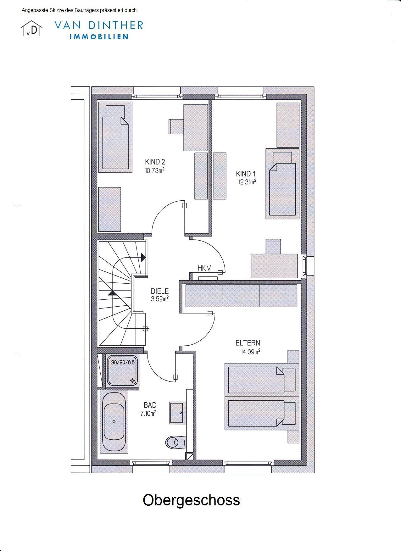
Obergeschoss:
Dachgeschoss:
Dachgeschoss:
Das helle Dachstudio ist mit einem Giebel und einem Dachflächenfenster ausgestattet. Der wunderschöne Raum mit behaglicher Atmosphäre kann als Schlaf- oder Arbeitsraum genutzt werden.
Direkt nebenan ist der geräumige Abstellraum. Hier befinden sich die Anschlussmöglichkeiten für Waschmaschine und Trockner, ein Handwaschbecken sowie die moderne solarunterstützte Heizungsanlage.
Ausstattung:
Ausstattung:
- Fußbodenheizung in allen Wohnräumen
- Moderne solarunterstützte Heizungsanlage
- Sicherheits-Standard RC2-N im Erdgeschoss an Fenstern und an der Terrassentüre
- Elektrische Rollläden an allen senkrechten Fenstern
- Moderne und hochwertige Sanitärausstattung in Bad und Gäste-WC
- Umfangreiches Elektro- und LAN-Paket
- Hochwertige Fliesen in Küche, Diele (EG), Bad und Gäste-WC
- Moderne Vinyl-Fußboden in den Wohn-, Schlaf- / Arbeitszimmern
- Gepflasterte Terrasse und Hauszugänge
- Eingefriedeter Garten
- Garage
- Stellplatz



