Aktuelle Angebote
VERMIETET:
Erstbezug, Maisonette-Wohnung mieten in Nievenheim:
Die in einem Zweifamilien-Neubau gelegene Maisonette-Wohnung freut sich bereits auf den Erstbezug. Die Wohnung erstreckt sich über Ober- und Dachgeschoss. Große Fensterfronten lassen viel Tageslicht herein. Lichtdurchflutete Räume sorgen für eine angenehme Wohlfühlatmosphäre.
Die Wohnung ist nach Absprache bezugsfertig.
Steckbrief:
Steckbrief:
Maisonette-Wohnung in Ober- und Dachgeschoss in einem Neubaugebiet in Dormagen Nievenheim
Adresse: Wird zum Besichtigungstermin bekannt gegeben.
Erstbezugsfertig: Nach Absprache sofort
Besichtigung: Nach Absprache
Wohnfläche: xxx m²
Stellplatz: 1
Aufteilung:
Obergeschoss: 2 Zimmer, Küche, Diele, Gäste-WC,
Dachgeschoss: 2 Zimmer, Balkon, Diele, Badezimmer mit Dusche und WC
Kaltmiete: xxxx € (Grundmiete: xxxx,- € + Stellplatz: xx,- € )
Nebenkosten: xxx,- € (inklusive Heizung )
Kaution: xxxx,- €
Der Energieausweis ist in Bearbeitung und liegt bei Anmietung vor.
Der voraussichtliche Endenergiebedarf des Gebäudes beträgt xxx kWh/(m²*a).
Der Energieausweis ist in Bearbeitung und liegt bei Anmietung vor.
Der voraussichtliche Endenergiebedarf des Gebäudes beträgt xxx kWh/(m²*a).
Für das unbefristete Mietverhältnis soll in den ersten beiden Jahren ein beidseitiger Kündigungsausschluss gelten.
kontaktformular
Lage:
Die neue, für den Erstbezug fertiggestellte Maisonette-Wohnung liegt in Nievenheim, dem beliebten Dormagener Stadtteil.
Das Neubaugebiet bietet beste Anbindung an Düsseldorf, Neuss und Köln. Die S-Bahn ist fußläufig erreichbar. Alternativ bieten Autobahn, Bundes- und Landstraßen komfortablen Anschluss an Düsseldorf, Köln, Neuss und Mönchengladbach. Im Ort befinden sich zahlreiche Einkaufsmöglichkeiten für den täglichen Bedarf.
Das Wohngebiet wird durch einen Grünstreifen, der zum Spazieren einlädt, aufgewertet.
Weitere Erholungsmöglichkeiten findet man an dem in der Nähe gelegenen Rhein (5 Km) und in lokalen Naherholungsgebieten (Knechtsteden, Tannenbusch).
Familien erfreuen sich über zahlreiche Kitas, Grund- und weiterführende Schulen. Innerhalb des Wohngebietes wird ein neuer Kinderspielplatz errichtet.
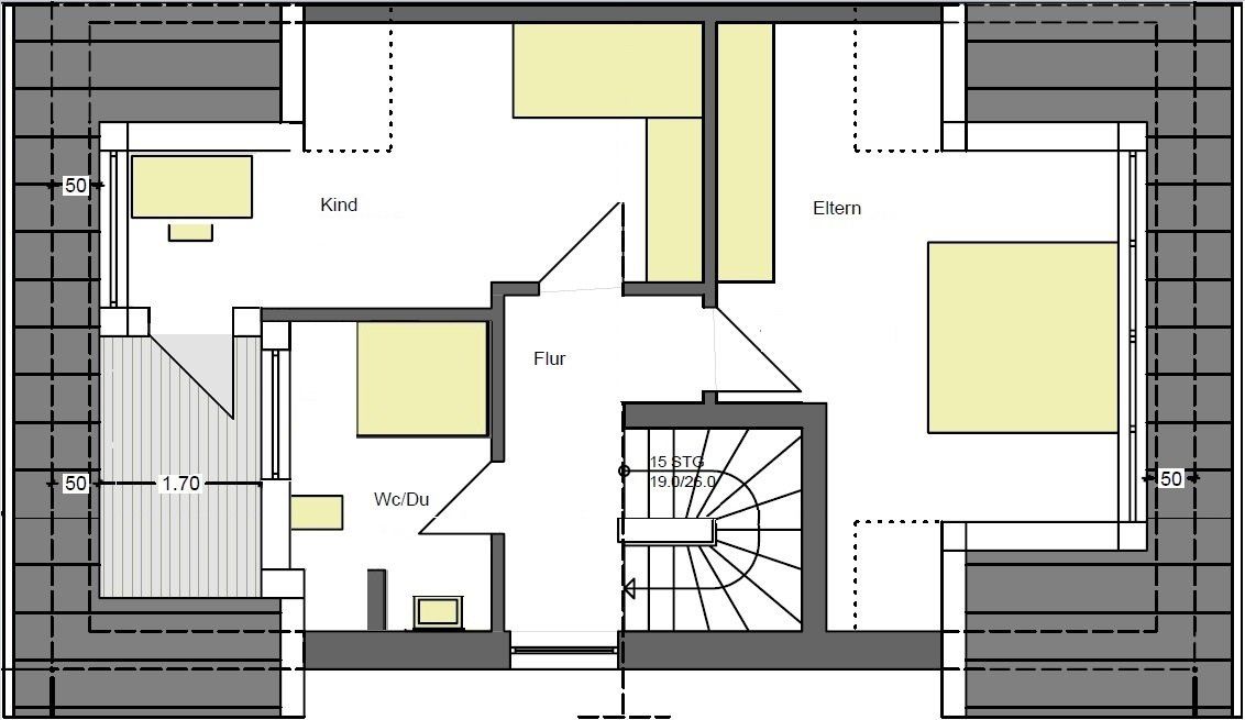
Grundrisse
Obergeschoss:
Obergeschoss:
Im Obergeschoss befindet sich der Eingangsbereich der Wohnung. Von der Diele haben Sie Zugang zur Küche, dem hellen Wohn- und Esszimmer, dem Gäste-WC und einem weiteren Wohnraum. Letzterer kann als Gäste- sowie Kinderzimmer oder auch sehr gut als Büro mit viel Abstellmöglichkeit genutzt werden.
Desweiteren gelangen Sie von der Diele über eine Treppe ins Dachgeschoss.
Dachgeschoss:
Dachgeschoss:
Im Dachgeschoss befinden sich zwei großzügige Räume, von denen einer mit Zugang zum Balkon ausgestattet ist. Die beiden wunderschönen Räume mit behaglicher Atmosphäre, können sehr gut als Schlaf- oder Arbeitsräume genutzt werden.
Weiterhin ist auf dieser Etage das Bad mit großer, ebenerdiger Dusche, WC und Waschbecken.
Das Bad bietet auch den Platz für Ihre Waschmaschine.
Ausstattung:
Ausstattung:
- Fußbodenheizung in allen Wohnräumen
- Moderne solarunterstützte Heizungsanlage
- Elektrische Rollläden
- Moderne und hochwertige Sanitärausstattung in Bad und Gäste-WC
- Umfangreiches Elektro-Paket
- Hochwertige Fliesen in Bad und Gäste-WC
- Moderne Fußböden in den Wohn-, Schlaf- / Arbeitszimmern
- PKW-Stellplatz
- Abstellmöglichkeit im Erdgeschoss
Hinweise:
Die Grundrisse können von der tatsächlichen Bauausführung abweichen. Die Fotos können bearbeitet sein.










